Yamaguchi
Reforma integral de piso en Pamplona. Año 2019.
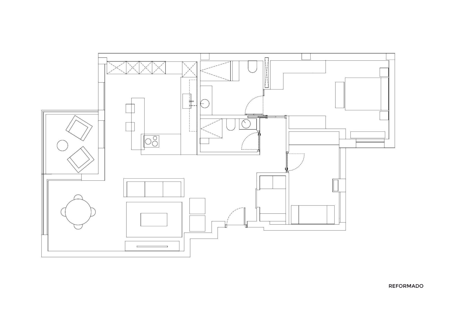
Reforma con distribución abierta en planta con una cocina previamente encargada por el cliente, amoldando el espacio para la cabida de ésta.
Se accede a la vivienda a través de la zona de estar con la cocina vinculada a ella y con dos habitaciones, principal y secundaria sobre patio interior.
Reforma donde prima el gusto y exquisitez de los detalles.









