San Juan
Reforma integral de piso en Pamplona. Año 2018.
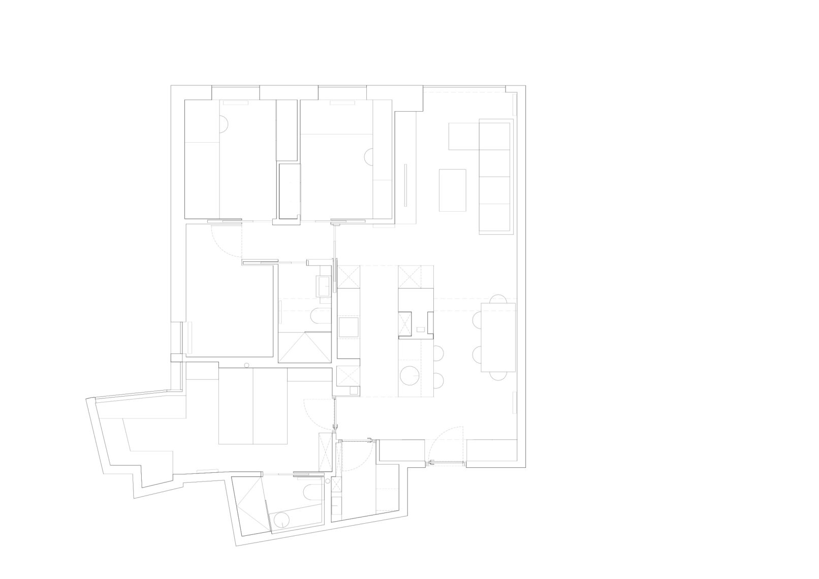
Se realizó procediendo al derribo completo de tabiquería interior para proceder a una distribución de las estancias interiores atendiendo a las necesidades del cliente. Una distribución clara diferenciando zona de día y noche.
El espacio de zona de día de estar-comedor y cocina y abierta, sirven de antesala a la zona de noche, constando esta de un total de 3 dormitorios secundarios con un baño completo y un dormitorio principal aparte con baño incorporado.
El óptimo aprovechamiento del espacio hacen de esta vivienda un lugar funcional y acogedor, al mismo tiempo.







