• –
  • Qué hacemos
    • Anteproyectos
      • REFORMA O REHABILITACIÓN – SERVICIO 48H
    • Reformas de viviendas
    • Rehabilitación
    • Actividades comerciales
  • Conócenos
  • Contacto
ORA estudio
  • –
  • Qué hacemos
    • Anteproyectos
      • REFORMA O REHABILITACIÓN – SERVICIO 48H
    • Reformas de viviendas
    • Rehabilitación
    • Actividades comerciales
  • Conócenos
  • Contacto
Search site...
MENU CERRAR

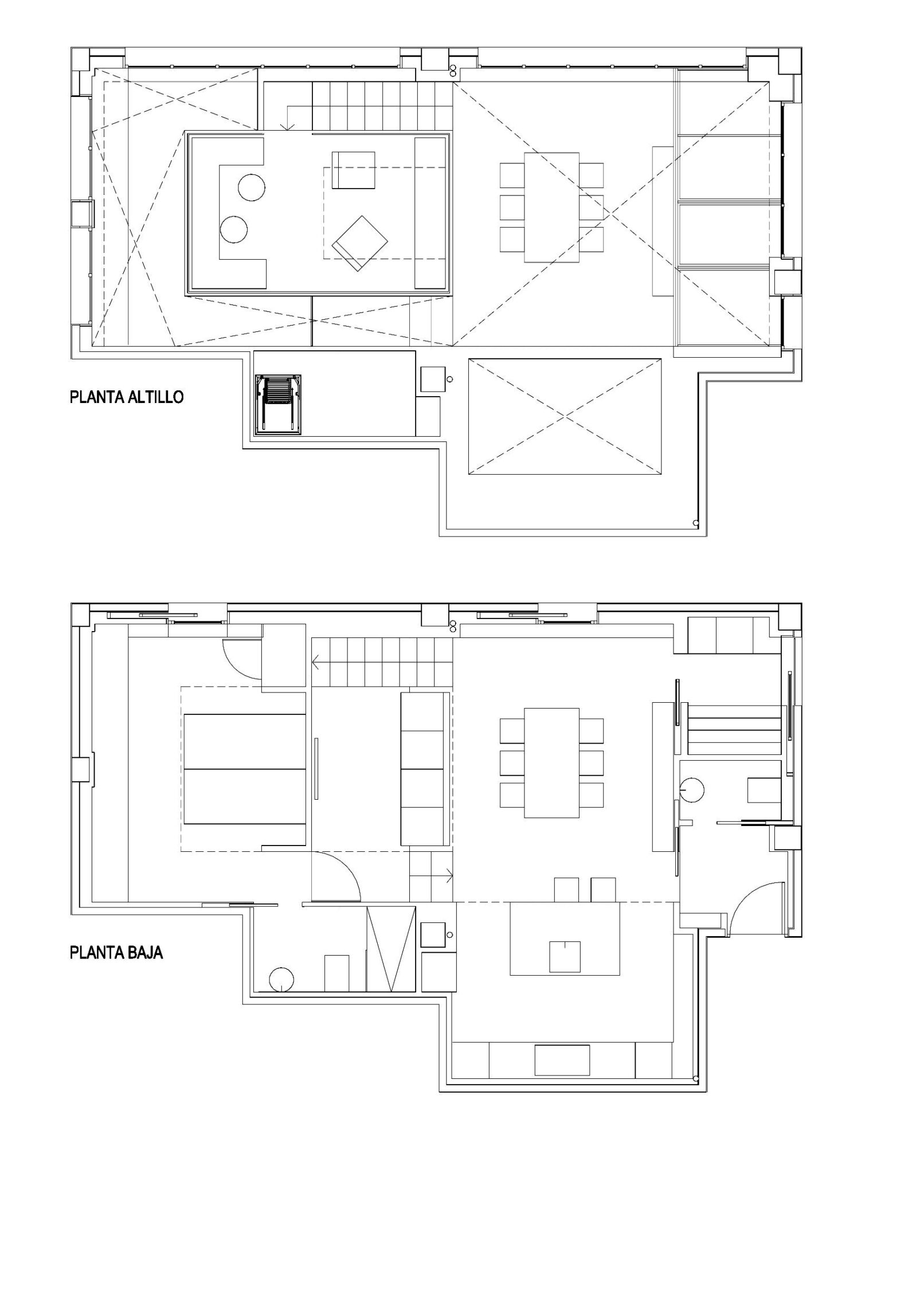
Loft Pamplona

Loft en Pamplona. Año 2016.

Acondicionamiento de local de bajera sin uso a vivienda.

La peculiaridad de este inmueble radica en sus tres frentes de fachada y su acceso directo e independiente a la calle a través de un porche.

Una ventana rasgada perimetral inunda de luz todo el espacio. Se disponen a su vez de unos huecos bajos en zona de estar y habitación.

Se divide en dos zonas diferenciadas, una inferior donde se desarrolla todo el programa con vestíbulo de acceso, cuarto inodoro, tendedero cerrado, zona de día, (estar-comedor-cocina), y habitación principal con baño completo. Una zona elevada de altillo sobre-elevado que delimita la zona de estar y cama de dormitorio de planta baja y donde se vislumbra una visual general del espacio circundante. Esta zona se destina a oficina o similar.

Programa de la vivienda:

  • - Estar-comedor-cocina
  • - 1 Dormitorio principal
  • - 1 Despacho y zona de estudio
  • - Vestíbulo de acceso
  • - 1 Tendedero cerrado
  • - 1 Cuarto inodoro
  • - 1 Baño completo
0

Share

Facebook Twitter Pinterest Email
Previous project
Next project

Somos un equipo multidisciplinar,
nos encanta la arquitetura y el diseño.

Mándanos un email info@oraestudio.com

Ó llámanos al +34 628 09 37 67

Páginas principales

  • –
  • Qué hacemos
    • Anteproyectos
      • REFORMA O REHABILITACIÓN – SERVICIO 48H
    • Reformas de viviendas
    • Rehabilitación
    • Actividades comerciales
  • Conócenos
  • Contacto

  • Email
  • WhatsApp

© Copyright 2023   |   All Rights Reserved   | Ver politicas web | Desarrollada por iglobal3d.es