Aizoáin
Sala multiusos, Aizoáin. Año 2020.
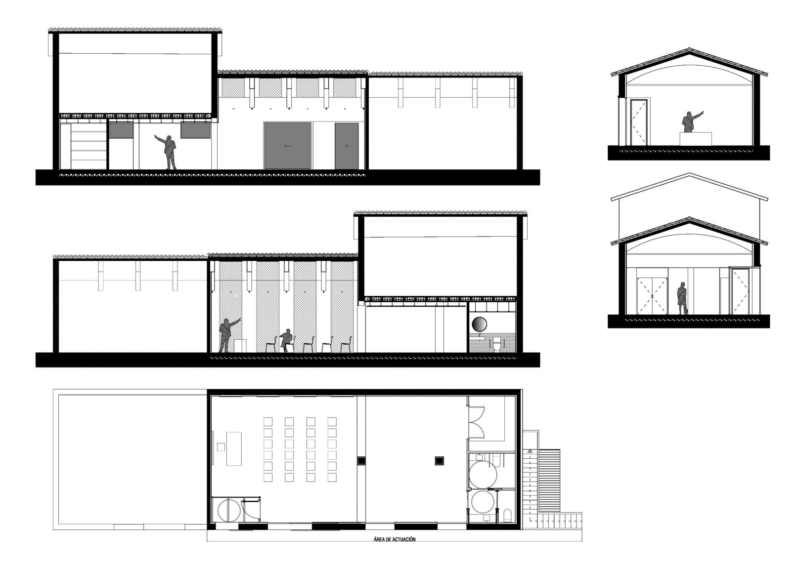
Sobre un espacio previo de almacén se realiza esta rehabilitación para dotar al inmueble del concejo de una sala polivalente, multiusos.
Se reviste la fachada con mortero monocapa, se rehabilita la cubierta y se abren nuevos huecos de acceso e iluminación.
La sala queda completamente diáfana con un espacio previo de acceso, como un cubo hacia el interior de la sala que hace de espacio vestibular previo. Sobre el fondo se disponen de aseos adaptados y un pequeño almacén.
Sobre la sala se recuperan los arcos y se protegen la estructura de tensores. Los revestimientos de virutas de madera sobre paredes y techo permiten una abosrción acústica óptima. La iluminación suspendida hace el espacio interior un lugar agradable de estancia.
Sala multiusos, decoración atemporal en tonos suaves y terrosos. Diseño sencillo y funcional para hacer de esta sala un espacio completamente versátil.























