Abaurrea Alta 3
Eliminación completa de barreras. Pamplona año 2018.
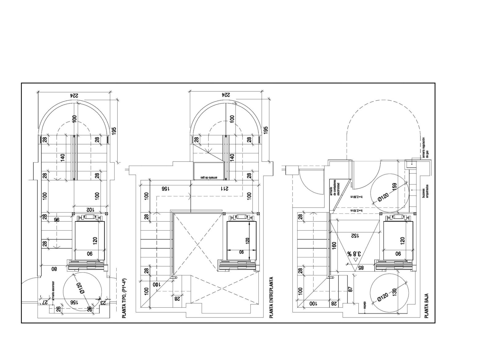
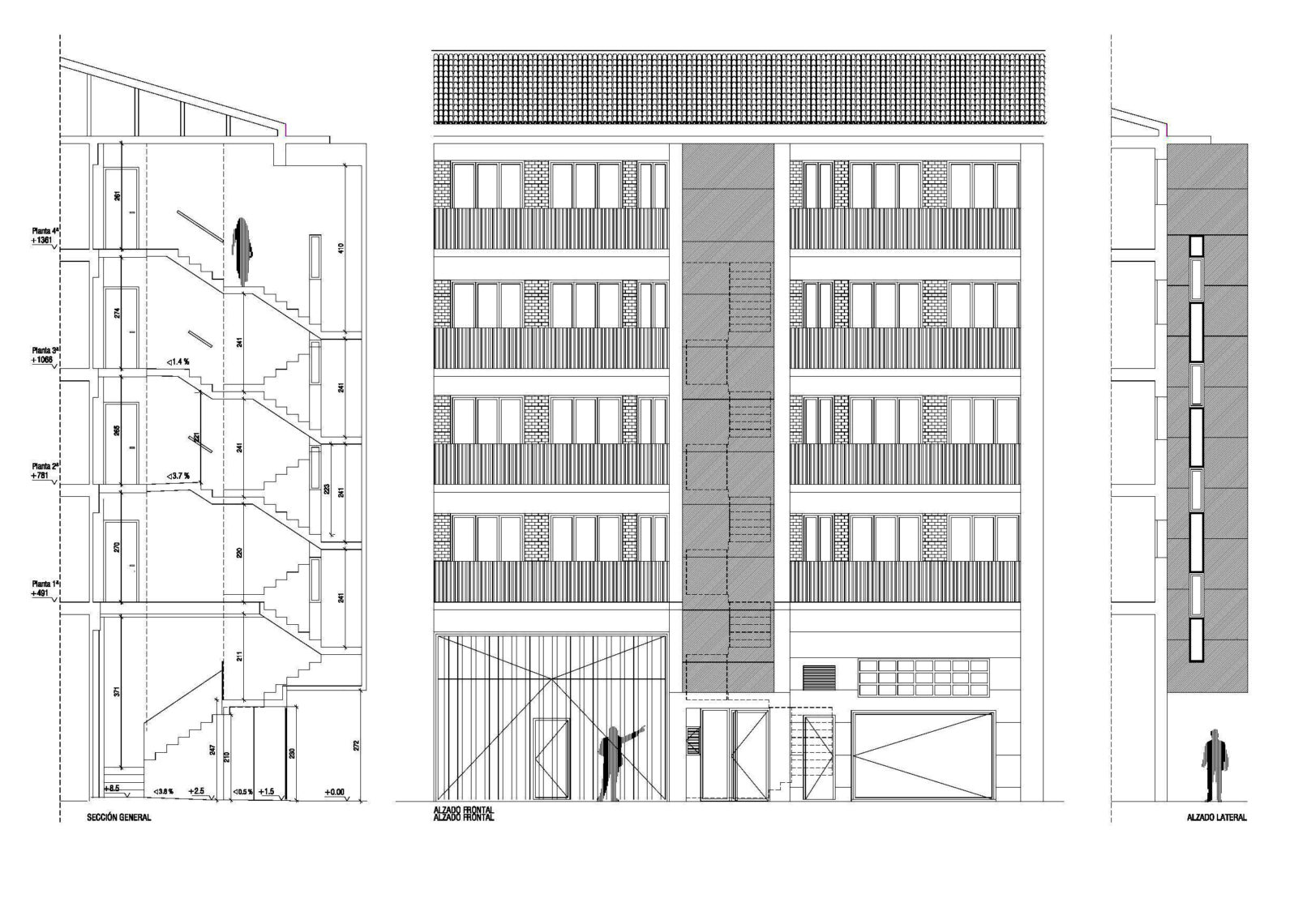
Sobre un portal sin ascensor, dio lugar a una nueva escalera emergente sobre fachada, acogiéndonos a estudio de detalle previo, para poder alojar sobre el interior del inmueble el ascensor que dota a las viviendas de acceso en cada planta.
La nueva escalera hace del espacio del portal un lugar de doble altura que hace que la luz rebose e invada este, haciéndolo visualmente más amplio.








