Imarcoain
Rehabilitacion de vivienda. Navarra 2019.
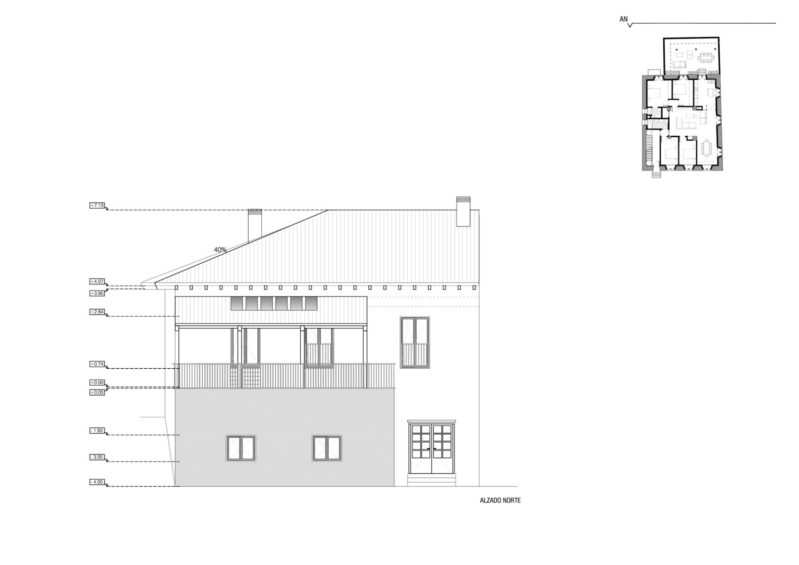
Vivienda sobre medianil que se reconstruye sus fachadas de mampostería respetando en gran medida sus huecos pre-existentes. Se desaloja todo el interior para posteriormente forjar dos pisos y una nueva cubierta de estructura de madera.
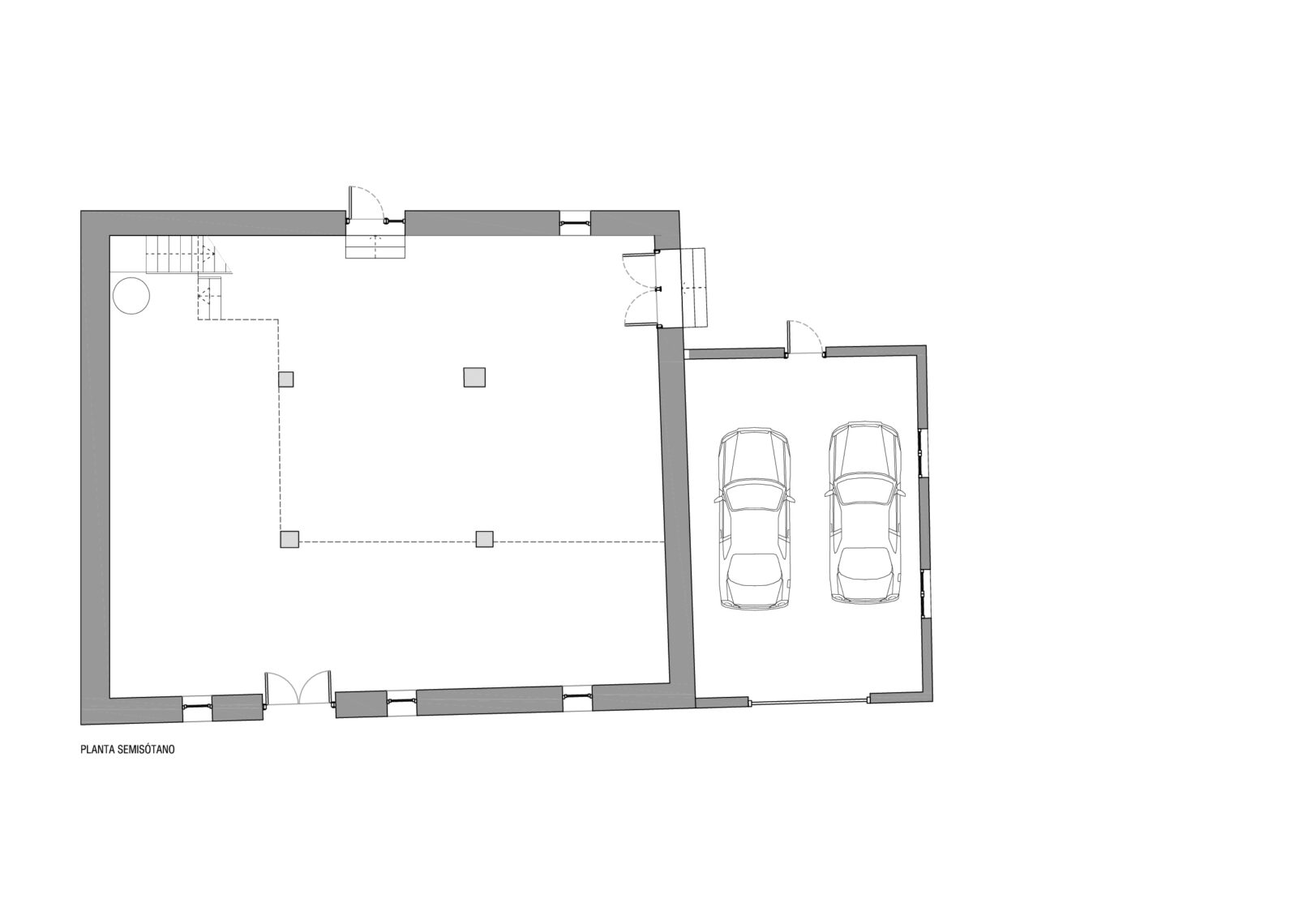
La planta baja se sanea para que reúna unas condiciones de salubridad óptimas para un acondicionamiento futuro.
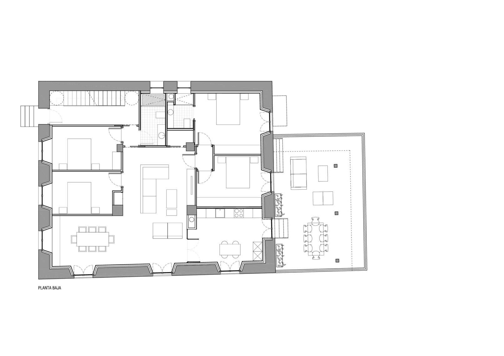
La vivienda se rehabilita por completo en planta primera con un total de 4 habitaciones y una zona de estar que sirve como distribuidor a estas. La cocina y estar en su lado este como un brazo longitudinal que hace que la vivienda tenga una panorámica en tres frentes de fachada. A la entreplanta se accede a través de una escalera de madera de diseño con peldaños volados sobre una estructura metálica de doble zanca. La entreplanta como un espacio completamente diáfano con infinidad de posibilidades. Grandes huecos sobre cubierta terminan de iluminar este espacio.
Programa vivienda
- Salón - cocina
- 3 Habitaciones
- 2 Baños
- Ático
- Txoko
- Garaje






















