Descalzos 76
Eliminación completa de barreras. Pamplona 2020.
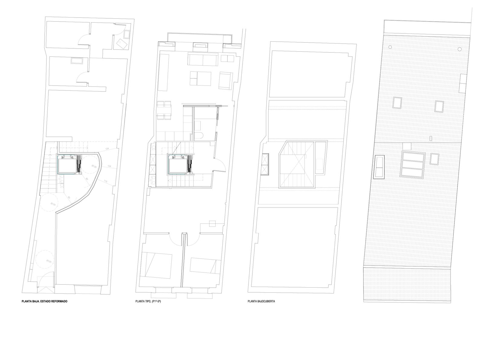
Instalación de ascensor sobre hueco de escaleras pre-existente. Se tuvieron que derribar los anteriores tramos de escaleras de plantas elevadas, prevaleciendo los rellanos de planta e intermedios. Escalera de una anchura ajustada a 80 cm para poder dar lugar a un ascensor de 90*120 cm y eliminar así completamente barreras. Se invadió parte del local de planta baja con una partición en curvatura para que el espacio de cesión fuera el mínimo posible.
Ascensor de estructura metálica con cierre de vidrio traslúcido y con ventilación natural al no disponer de huecos propios de ventanas.
Un cambio radical de portal que ha dado lugar a una renovación de acabados e iluminación.








